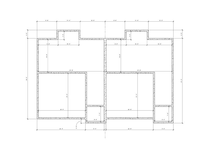
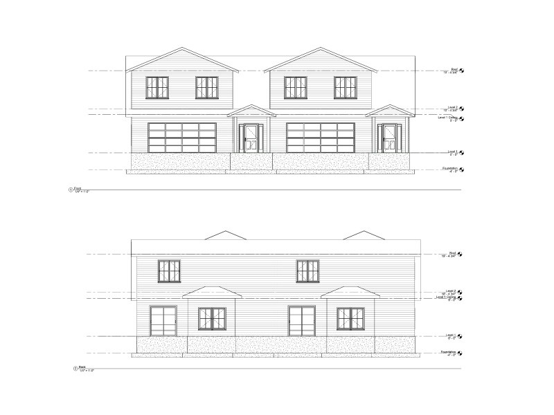
Birchwood

Birchwood is the standout of the Walnut Acres development - a striking two-story duplex that commands attention from the street. The exterior blends dark charcoal horizontal siding with vertical board-and-batten accents, rich wood-look garage doors, and stacked stone detailing at the base to create a layered, contemporary farmhouse look. It's a home that looks like it belongs on a design magazine cover, while still feeling approachable and livable. The warm glow of interior lighting through large, well-placed windows adds an inviting quality that's hard to ignore.
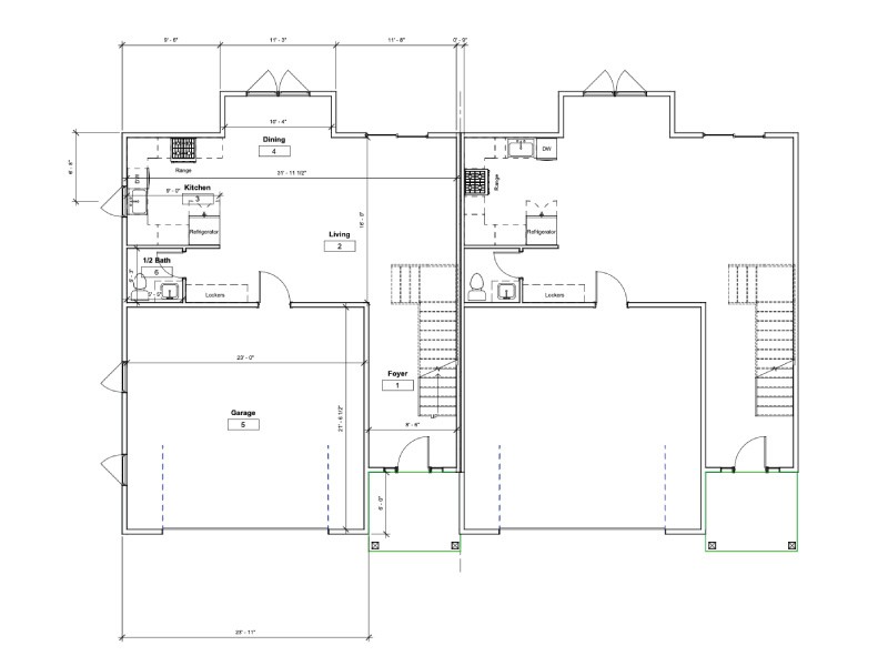
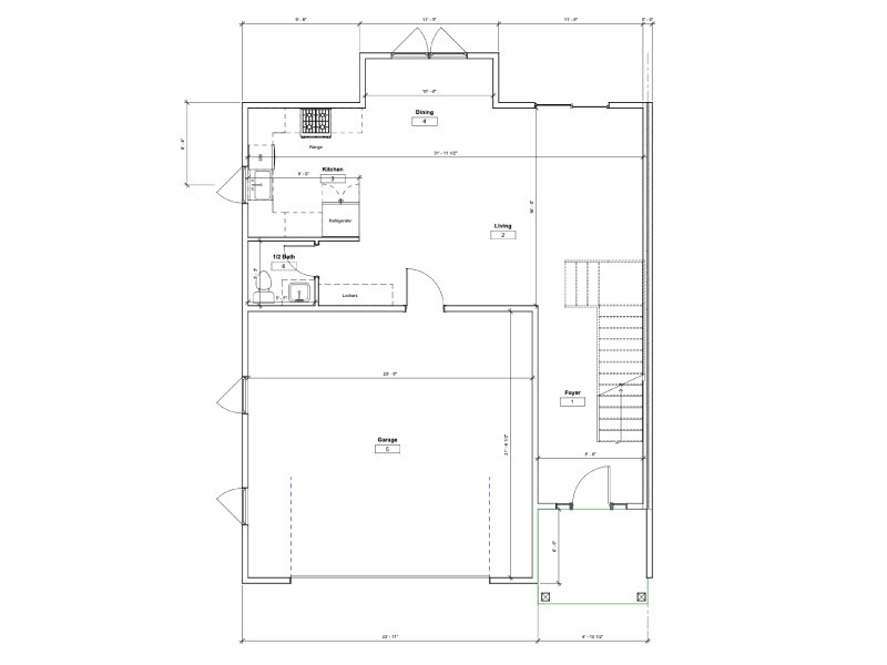
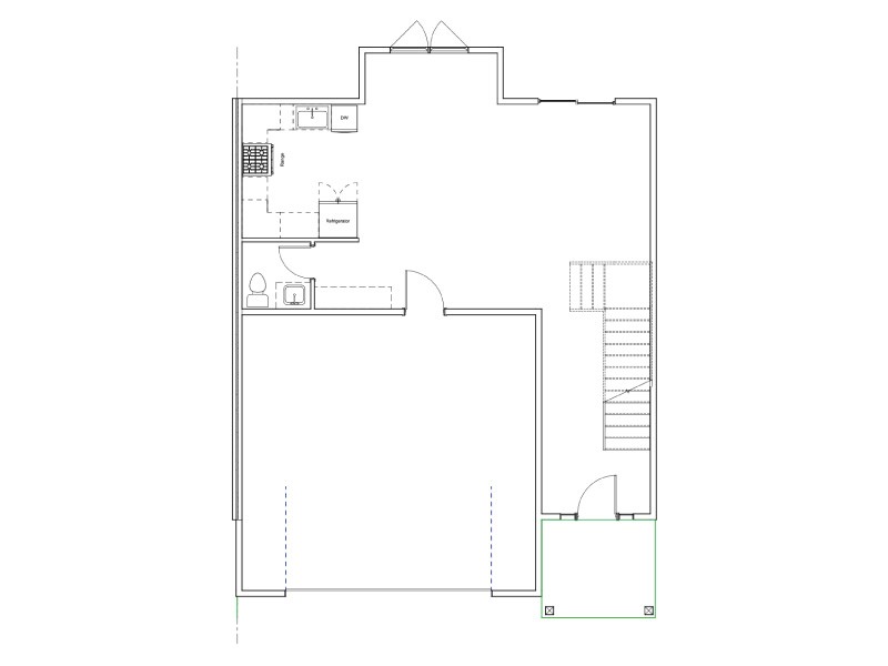
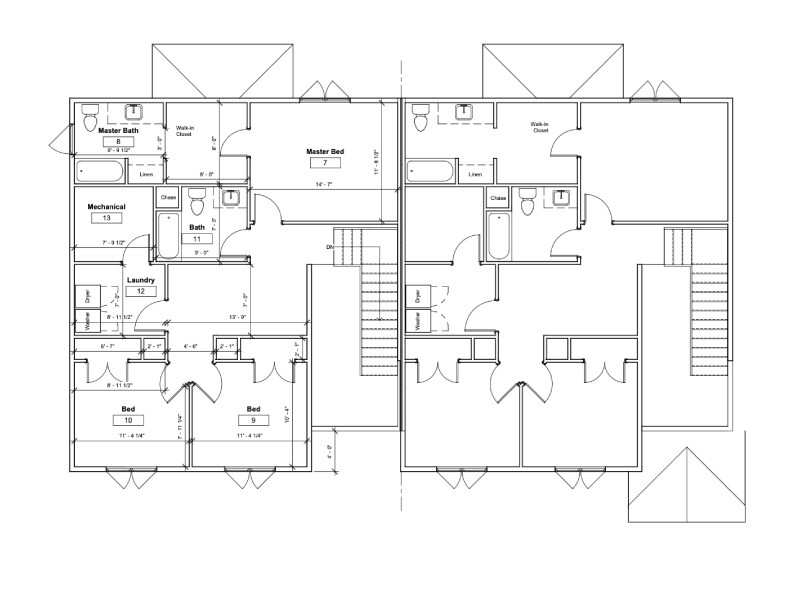
Inside, each unit benefits from the generous vertical square footage that a two-story layout provides - giving residents room to spread out without sacrificing the shared-community character that defines Walnut Acres. Whether you're looking for a primary residence with income potential or a home with flexible living arrangements for multigenerational use, Birchwood offers something few new-construction opportunities can: a premium timber frame build with a layout built for real life. It's sophisticated, practical, and genuinely one of a kind.











